Archibnb

victor 2019-03-30
13564 view · 135 likes
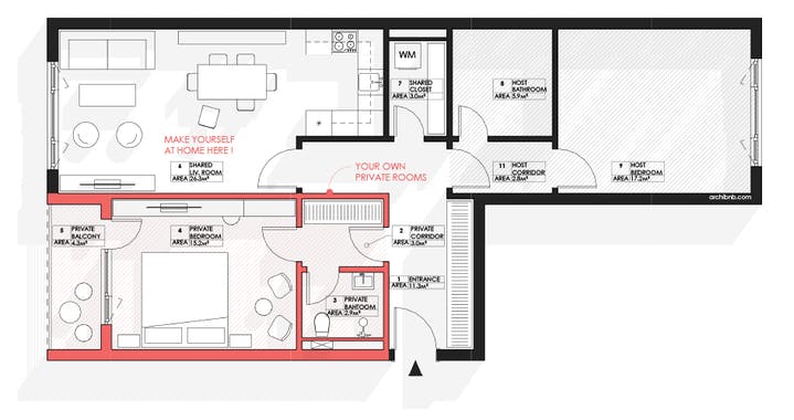
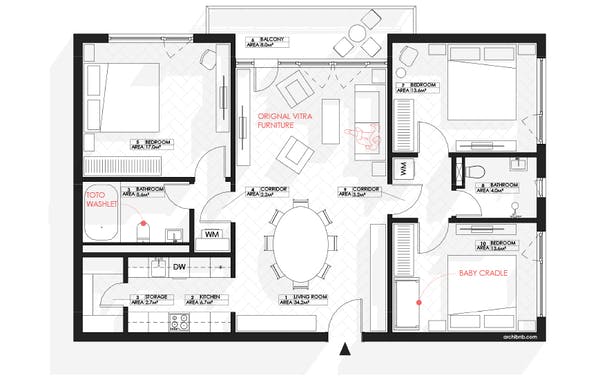
Archibnb offers an usual service to Airbnb and short term rental hosts - a professional floor plan to improve their listing. This gives potential guests a whole new level of information enables them to make a better decision.
Archibnb Archibnb Archibnb

Latest View Products

Supernova V6 Untools Ethically UserHunt Postscript Dato MockMagic VS Code Stories Fixed Club Markopolo AI Response Consistent Beta Neighborly CryptoWill Co-Step CSML Playground coins OneBot EvaWarm Iteratively Wanderlog TinyNPS On Deck Scale Docuowl Teamflow Biteable Seery ePersonate ShareTable Party Round iNFTsta Mailflow Flat illustrations Wime PersonaFi Brain Drain QuestBook Unmailto Chessmate Game Planner Literary Map Webshot Frill ZenOwn Avokaado Audiblogs Magicrop Showwcase Filadd Developer Ipsum Picturray ForecastAI Doge Temple Wagmi Happy Things Mentorcam LetterHunt Jour Townscaper Minerva EmojiScope ElementsReady Voitex UserSplit Learning Story Hidden Tools The Dots Amplifier JobTrack Twickr ProgrammerHumor.io Upshot MustVote ContainIQ FigmaOP Pensela Writeby CozyRoom bilgge. 1mbsite v2 DomainPage RemoteQuiz Vocly Craphouse Union54 Reddit Bests SkinTheory Planny 4 Carta Launch Mentioned Feedibus Toki Lucidscale BeeCanvas DynaPictures Inbox Zero Uplift Efficiency Codemap 2.0 Lyne Remote Health Interview Insider Overlooked Easynote Product Band Slideshare Views 4 Translatar Airdesk LaunchSong Berowra Buddymove Convync FlashFlash Feed Preview Mapify Popl Socialify CuraCine Unified Tools Wicked Backgrounds Fliqpay Newspack Makeswift FlowBite Figma Brew.com AhaPitch SaaSPlace Premast Plus Backflip NameSnack MNTR RadioBar NoteLedge Mentioned By SwitchGlass Profitable Chrome Extensions Database BazooApp Onrise Swatches Kbee Dope.Link Ominy Market Identance apocha DrillRoom Wisesheets DevUtils lllook Profitable developer tools database Capo Bobson Definer Tabji Stackprint Heights UI Flow Cards Taskade 3.0 Bootstrap 5 CheatSheet Shiny.js PayNano Earlyname redtelly EyeDrive BAZO Remote Choice Webcodesk Vidiwise Flexiple OpenSource Rewind Authorizer NotionExtensions Presetium Sorry Babe Minikan Wonder UrboTask Stinto Nowescape ObjectCut DevCase Zero Waste App Juphy Responsively Buildbites Prop Hero Datelist Flate Ghost Knowledge Openspace Admin Panel UI Kit Informant Webager ResumeSeed Save Email Template SocialBu Strollhunt Bukable Wholeheartedly Strum Unboxable Archibnb

🔥 Recommended

Welcome

Welcome to ProductDiscover, Here has a lot of interesting things about product / develop / games.
Contact Email [email protected]

Friends

Copyright © 2021 ProductDiscover
Languages: zh en pt de hi kor jp ru